



Parameter
General Specification
Item
Contents
Unit
LCD Type
TFT
-
LCD Panel Grade
INNOLUX
-
Display color
16.7M
Viewing Direction
12
O'clock
Gray scale inversion direction
6
O'clock
Operationg temperature
-20~+70
℃
Storage temperature
-30~+80
℃
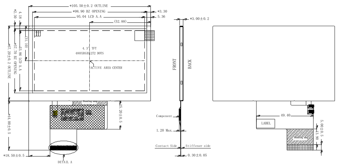
Module size
Refer to outline drawing
mm
Active Area (WxH)
95.04x53.86
mm
Number of Dots
480x272
dots
Controller
ILI6480B
-
Power Supply Voltage
3.3
V
Outline Dimensions
Refer to outline drawing
-
Backlight
10-LEDs
pcs
Weight
---
g
Interface
RGB-24bits (HV mode)
-
Optical Characteristics
350
time
Item
Symbol
Condition
Min.
Type.
Unit
Brightness
Bp
θ=0°
=0°
-
500
cd/m2
Uniformity
Bp
80
-
%
Viewing
Angle
3:00
65
-
Deg
6:00
Cr≥10
55
-
9:00
65
-
12:00
65
-
Contrast Ratio
Cr
θ=0°
=0°
500
-
Response
Tr
-
10
ms
Tr
-
10
ms
NTSC Ratio
S
θ=0°
=0°
50
60
%
Outline Drawing
